
Представляем каталог строительных конструкций для контактных сетей на железных дорогах. Мы предлагаем широкий выбор высококачественных компонентов, необходимых для установки и обслуживания контактных сетей, обеспечивая надежность и безопасность нашим клиентам.
Наши стойки опор являются надежным фундаментом для контактных сетей, обеспечивая их устойчивость и долговечность. Мы предлагаем различные варианты крепления металлических стоек к фундаменту, обеспечивая прочное и надежное соединение.
Для изоляции и регулировки используются специальные компоненты, такие как втулки, шайбы и колпачки изолирующие, обеспечивая эффективную работу контактных сетей даже в самых сложных условиях.
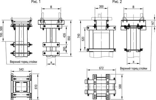
Наш ассортимент также включает оголовки и лестницы с ограждениями, обеспечивая безопасный доступ к контактным сетям для обслуживающего персонала.
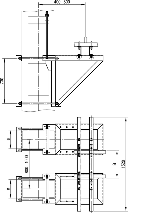
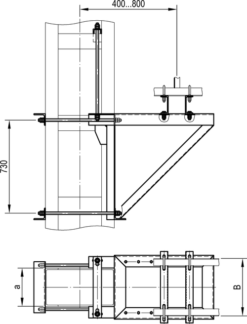
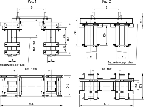
Мы также предлагаем опорные столики для одиночных и сдвоенных опор, а также соответствующие оголовки, обеспечивая полную комплектацию для строительства и обслуживания контактных сетей на железных дорогах.
